Mi változott a Tűzterjedés elleni védelem TvMI-ben? 2020. augusztus 06. 08:40 A TvMI 2020 I. félévére tervezett bővítését a munkacsoport digitális üzemmódban egyeztette le. Ennek köszönhetően a TvMI 2020. július 20-tól alkalmazható. Milyen változások történtek a TvMI-ben? Tűztávolság, Homlokzati tűzterjedés elleni védelem, Növényekkel beültetett tetőfödémek tűzterjedés elleni védelme, Tűzgátló nyílászárók kialakítása átvezetések lezárásai! Ezt foglalja össze szerzőnk.
Tűztávolság
Tűztávolság meghatározásánál nagyon fontos, hogy honnan mérjük a távolságot, milyen épületrészeket veszünk, vagy nem veszünk figyelembe. Új elemként jelent meg a TvMI-ben azon épületrészek köre, amelyek tűztávolságon belül a szemben álló homlokzatok közötti tűzterjedést nem befolyásolják, így nem kell figyelembe venni a tűztávolságnál.
A tűztávolságon belül, szemben álló homlokzatok közötti tűzterjedést az alábbi épületrészek nem befolyásolják:
a) tetőfödém (lapostető), amely a mértékadó kockázati osztálynak megfelelő tűzállósági teljesítményű tűzgátló födém és a tetőfödém tetőszigetelési rendszere felett legalább 5 cm vastag A1 vagy A2 tűzvédelmi osztályú anyaggal (pl. beton vagy kő járólap, kavics stb.) fedett.
b) zöldtető, amely a mértékadó kockázati osztálynak megfelelő tűzállósági teljesítményű tűzgátló födém és a magasabb épületrészekhez min. 60 cm széles legalább 5 cm vastag A1 vagy A2 tűzvédelmi osztályú (pl. beton vagy kő járólap, kavics stb.) sávval csatlakozik.
c) a homlokzati síkból kiugró, kizárólag közlekedési célú függőfolyosó, amelyen a funkciójából adódóan éghető anyag tárolás nem történik, minden eleme min. A1 vagy A2 tűzvédelmi osztályú, valamint olyan esővédő előtető, ami A1 vagy A2 tűzvédelmi osztályú
A tetőterasz, erkély, valamint az éghető kialakítású eresz, vagy a függőfolyosó a továbbiakban is csak tűztávolságon kívül eshet.
1. ábra (a nagyítható, külön megnyíló képért kattintson!)
Homlokzati tűzterjedés elleni védelem
A homlokzati tűzterjedés elleni védelem céljára a tűzszakasz-határon olyan függőleges vagy vízszintes homlokzati tűzterjedés elleni gátat kell kialakítani, amelynek tűzvédelmi jellemzői megfelelnek a vonatkozó előírásoknak és méretei megfelelnek ezen irányelvben meghatározott geometriának. Abban az esetben, ha a két tűzszakasz (vagy két épület) homlokzata 120°-nál nagyobb szögben találkozik és a homlokzaton síkból kiugró erkélyek, függőfolyosók találhatók, akkor az alábbi megoldások fogadhatók el a függőfolyosók, valamint az erkélyek között a tűzterjedés megakadályozására.
- Függőfolyosók esetén, a függőfolyosó minden eleme tűzterjedési gátnak megfelelő legyen legalább 90 cm szélességben (min. A2 tűzvédelmi osztályú és tűzgátló födémmel megegyező tűzállósági teljesítményű legyen, valamint éghető burkolatokat nem tartalmazhat).
- Erkélyek esetén,
a) ha az erkély csak az egyik homlokzaton található, akkor az erkély legközelebbi pontjától a szomszédos épület (tűzfal), vagy a tűzszakaszhatár legalább 3,0 méterre legyen;
b) ha az erkély mindkét érintett homlokzaton található, akkor köztük általánosan a tűztávolság távolságát kell megtartani. 5 méternél nagyobb tűztávolság esetén elegendő legalább az 5 m megtartása. Ez a távolság 3 méterre csökkenthető akkor, ha mindkét erkélyen az egymás felé eső oldalon legalább EI 30 tűzállósági teljesítményű legalább 1,3 m magas mellvédet alakítanak ki.
Azonos tűzszakaszba tartozó szintek között a homlokzati tűzterjedés elleni védelem biztosítására alkalmas megoldások is bővültek:
- Megfelelő az a megoldás, ha egy részleges vagy teljes konfiguráció szerinti tűzállósági teljesítmény-vizsgálattal rendelkező függönyfalhoz azzal együtt minősített építményszerkezet csatlakozik, és együtt teljesítik a részleges vagy teljes konfiguráció szerinti tűzállósági teljesítmény-követelményt.
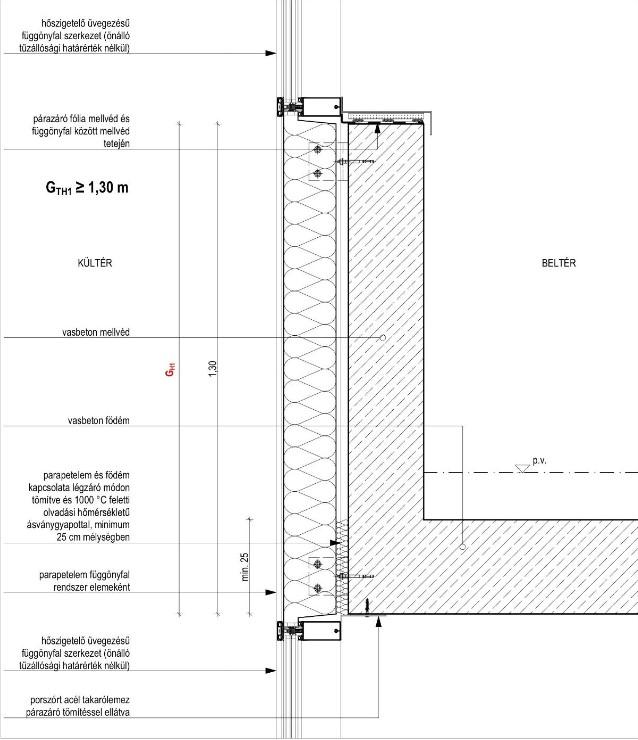
2. ábra (a nagyítható, külön megnyíló képért kattintson!)
- Az a kialakítás is elfogadott, ha önálló tűzállósági teljesítmény nélküli függönyfalhoz külön minősített vagy tűzállósági teljesítményre méretezett építményszerkezet csatlakozik, és így teljesíti a követelményt (2. ábra). Ilyen esetben a függönyfal és a hozzá csatlakozó, de attól külön minősített vagy méretezett építményszerkezet között 1000 °C fölötti olvadási hőmérsékletű ásványgyapot szigetelésű kitöltés szükséges, amelyet alulról legalább 1 mm, a megfelelő tűzállóságú (pl. vasbeton födémhez) építményszerkezethez rögzített acéllemez tart.
Eltérő magasságú, azonos vagy különböző telken álló építmények esetében a tűzszakaszok csatlakozásánál speciális tűzterjedés elleni védelmet szükséges kialakítani. Erre vonatkozólag több megoldást is tartalmaz a TvMI.
a) Egyik lehetőség, ha a különböző telken álló ingatlanok esetén a magasabb tűzszakaszhoz tartozó homlokzatot tűzfalként alakítják ki, és a függőlegesen mért 10 méter magasságig A1-A2 tűzvédelmi osztályú hőszigetelést alkalmaznak. Az azonos telken álló ingatlanok esetén a csatlakozástól függőlegesen mért 10 méter magasságig tűzgátló fal kialakítása szükséges, A1-A2 tűzvédelmi osztályú hőszigetelés alkalmazásával. (3. ábra).
3. ábra (a nagyítható, külön megnyíló képért kattintson!)
Abban az esetben, amennyiben az alacsonyabb tűzszakasz födémén tűztávolságon belül gépészeti elemek (pl. központi klíma és szellőző gépek, napelemek), installációk (pl. zajvédő falak, árnyékolók, reklámtáblák, növényfuttatók stb.), gépjárművek kerülnek elhelyezésre, a magasságok meghatározását a tetőn elhelyezkedő gépészeti elemek, installációk, gépjárművek felső pontjától szükséges figyelembe venni, beleértve a homlokzati burkolati, bevonati, hőszigetelő rendszereken történő tűzterjedés elleni védelmet is.
b) Ha az alacsonyabb tűzszakasz tetőfelületén alakítják ki a tűzterjedés elleni védelmet, akkor a magasabb tűzszakaszhoz tartozó homlokzattól azonos telek esetében vízszintesen mért 5 méterig, különböző telkek esetén a tűztávolságnak megfelelő távolságon belül kell a födémet tűzgátló födémként kialakítani és e távolságokban a tűzterjedési gátra vonatkozó csapadék és hőszigetelést, valamint kavicsréteget kell elhelyezni (4. ábra).

4. ábra (a nagyítható, külön megnyíló képért kattintson!)
c) Ha az alacsonyabb tűzszakaszon lévő tetőfödémen, a magasabb tűzszakaszhoz tartozó tetőteraszt alakítanak ki, akkor az alacsonyabb tűzszakasz teljes zárófödémét tűzgátló födémként szükséges kialakítani és az alacsonyabb tűzszakasz homlokzati falát a födém széléig a homlokzati tűzterjedési gát követelményeinek megfelelően kell kialakítani.
Új értelmező ábrák jelentek meg a 90-120° közötti szöget bezáró homlokzatok esetén a vízszintes tűzszakasz-határ megfelelő kialakítására (5. ábra).

5. ábra (a nagyítható, külön megnyíló képért kattintson!)
Az ilyen kialakítású homlokzatoknál ügyelni kell arra, hogy az alsó tűzszakasz legfelső szintjének tűzállósági teljesítmény nélküli nyílászárójának legfelső pontjából indított, „a” távolsággal húzott sugarú gömbön belül nem eshet, a hozzá képest 90-120° közötti szöget bezáró homlokzaton – a tűzszakasz határ fölötti szinten – tűzállósági teljesítmény nélküli nyílászáró/homlokzati fal. Az azonos ingatlanhoz (egy épülethez, önálló épületrészhez) tartozó egymással 120°-nál kisebb, de legalább 90°-os szögben találkozó tűzszakaszok homlokzati csatlakozásánál az “a” értéke legalább 5 m.
Növényekkel beültetett tetőfödémek tűzterjedés elleni védelme
A növényzettel telepített tetők a tető felülvilágítókhoz, kupolákhoz, gépekhez, magasabb épületrészekhez, lábazati elemekhez stb. legalább 5 cm vastagságú és 60 cm széles kavicssávval vagy más A1 vagy A2 tűzvédelmi osztályú, burkolattal szükséges, hogy csatlakozzanak. A tűzszakasz-határon a tűzterjedési gátnak megfelelő kialakítással kell a zöldtetőt megszakítani. A TvMI javasolja, hogy a zöldtetők legalább 3000 m2-ként min. 60 cm széles kavicssáv (vagy más A1 vagy A2 tűzvédelmi osztályú burkolat) megszakításokkal legyenek kialakítva.
Tűzgátló nyílászárók kialakítása
Tűzgátló nyílászárók beépítésének közelében tűzgátló lezárások – gépészeti és villamos vezetékek átvezetésével – csak úgy alakíthatók ki megfelelően, ha a nyílászáró beépítésének műszaki feltételei és a gépészeti és villamos vezeték-átvezetések tűzgátló lezárásának helyigénye együttesen teljesül. Az áttörést körbeölelő felületet tűzgátló falként szükséges kialakítani.
A jövőben megoldási javaslatot ad a TvMI a gépészeti szerelvények terhét hordozó aknafal kialakítására, a villamos aknák tűzszakasz-határon történő lezárására.
Felhívja a figyelmet arra, hogy a tűzgátló lezárások szabályos kivitelezésének alapfeltétele a födémekben létesített átvezetésekhez alulról, az aknafalban létesítettekhez pedig az aknafal mindkét oldaláról hozzá lehessen férni a kivitelezés során. Ebből fakadóan a tűzterjedés-gátlás alkalmazható módját az akna mérete, kialakítása is meghatározhatja.
Tartalmazza a tűzterjedés elleni védelem biztosítására alkalmas
- tűzgátló lineáris hézagtömítés feltételeit,
- a gépészeti és villamos vezetékek átvezetéseinek megfelelő tűzgátló lezárásait, valamint
- a tűzgátló csappantyúk beépítését különleges helyzetekben, illetve különleges fogadó szerkezetbe.
Az F. mellékletben a tűzterjedési gát kialakításokra új példákat bemutató ábrák jelentek meg, valamint a kivitelezést bemutató fényképmelléklet jó példákkal bővült.
A munkacsoport új mellékletben foglalta össze a tűzgátló lezárásokkal kapcsolatos tervezési és kivitelezési tudnivalókat, valamint hasznos tanácsokat fogalmazott meg a beépítési nyilatkozat kitöltésére. A dokumentumok és a beépítési nyilatkozat minta (6. ábra) a honlapon külön is elérhetőek.

6. ábra (a nagyítható, külön megnyíló képért kattintson!)
A munkacsoport a TvMI módosítása során az előzetesen beérkező javaslatokat, valamint a napi kivitelezések gyakorlati tapasztalatait vette figyelembe és törekedett egyre több – az elvárt biztonsági szintet teljesítő – megoldás kidolgozására.
Badonszki Csaba tű. alezredes, főosztályvezető-helyettes
BM OKF Tűzvédelmi Főosztály
Vissza
Ezt a hírt eddig 2506 látogató olvasta. |